生成工程图视图显示如何生成不同的工程图视图并标注尺寸。
出详图显示如何使用工具给工程图加注解。
装配体工程图视图显示如何生成爆炸装配体视图并使用特别为装配体设计的注解。
一. 生成工程图视图(Creating Drawing Views)
生成以下工程图视图:
剖面
投影
断开的剖面
剪裁
您还学习如何为各种工程图视图标注尺寸。

(一) 生成剖面视图(Creating a Section View)
打开一工程图然后从现有前视图生成一剖面视图。
1.打开<安装目录\samples\tutorial\advdrawings\FoodProcessor.slddrw。图纸包含两个工程图视图。
2.单击剖面视图
(工程图工具栏)。
3.绘制一穿过前视图中央的水平线,如图所示。指针变成
,表示指针位于与视图中央交叉的临时轴上。推理线也表示您是否穿越视图的中央进行绘制。
如果您获得一信息,询问您是否想要部分剖切,单击否。

4.单击以将剖面视图放置与前视之下。
当您移动指针时,会显示剖面视图位置的预览。
剖面视图与切除方向对齐,如剖切线箭头所示。剖切线箭头应朝下。若想反转箭头的方向,双击剖切线。
![]()
如果您反转剖切线箭头的方向,将会以剖面线图案对剖面视图进行标记,这表示视图已经过期。单击更新视图
(工程图工具栏)只更新剖面视图,或单击重建模型
(标准工具栏)以重建整个工程图。
5.单击
。

(二)给剖面视图标注尺寸(Dimensioning the Section View)
1.单击智能尺寸
(尺寸/几何关系工具栏)。
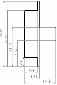
2.在剖面视图中,如图所示选择两条直线。

- 单击以将尺寸放置在视图的左边。

3. 在 PropertyManager 中:
在标注尺寸文字下在 <DIM> 中键入以下:
W.T.
TYP
单击左对齐
。
4.在图形区域中单击以完成文字。

5.如图所示在右边选择圆弧。

6.单击以将尺寸放置在视图的右边。

7.在 PropertyManager 中,在 R<DIM> 前键入2X
8.如图所示为剖面视图的其它部分标注尺寸。

9.单击
。
(三)生成断开的剖视图(Creating a Broken Out Section View)
断开的剖视图在工程图中暴露模型的内部细节。断开的剖视图为现有工程视图的一部分。首先,您生成一投影视图,然后您生成断开的剖视图。
1.单击投影视图
(工程图工具栏)。
2.选择工程视图1(Drawing View1)。
3.将指针往下拖动,然后单击将视图放置于 Drawing View1(工程图视图1)之上,如图所示。

- 选择投影视图,然后单击放大所选范围
(视图工具栏)。 - 单击隐藏线可见
(视图工具栏),这样易于生成断开的剖视图。
因您已有投影视图,您可生成断开的剖视图。
1.单击断开的剖视图
(工程图工具栏)。
2.绘制一样条曲线(大致如图所示)。您所绘制的样条曲线指定断开的剖视图的边界。
当您绘制样条曲线时,样条曲线点捕捉到几何体。若想暂时关闭捕捉,在您绘制样条曲线时按住 Ctrl。当您想连接样条曲线的开头和结尾时,放开 Ctrl。

- 在图形区域中,为深度选择孔的边线,如 Drawing View1(工程图视图1)中所示。断开的剖视图成形到所选孔的深度。

1.单击
。
编辑断开的剖视图的剖面线以易于看见。
2.选择投影视图,然后单击消除隐藏线
(视图工具栏)。
3.在断开的剖视图中将指针移动到剖面线上。当指针变成
时,单击以打开 PropertyManager。

- 在 PropertyManager 中:
a.消除选择材质剖面线。
b.将剖面线图样比例
设定为 4。
4.相反的剖面线重复步骤 2 和 3,然后单击
。

(四) 生成剪裁视图(Creating a Crop View)
现在生成前视图的剪裁视图以细观局部工程图。
首先,设定一些文档选项以定义在您生成视图时所插入的注解。
1.单击选项
(标准工具栏)。
2.在文件属性标签上,单击出详图。
3.在视图生成时自动插入下,选择中心符号线和中心线,然后单击确定。
接下来,生成另一前视图用作剪裁视图。
4.单击模型视图
(工程图工具栏)。
5.在 PropertyManager 中,在要插入的零件/装配体下确认选择了 base plate(底盘),然后单击
。
6.在模型视图 PropertyManager 中方向下单击 *前视
。
7.单击图形区域以将视图放置在现有前视图的旁边。
8.单击
。
9.用右键单击视图,然后选择切边、切边不可见。切边移除后,更容易标注视图尺寸。

现绘制一闭合轮廓以定义剪裁视图的边界。
10.单击样条曲线
(草图工具栏),然后大致如图所示绘制样条曲线。

11.单击剪裁视图
(工程图工具栏)。

12.单击智能尺寸
(尺寸/几何关系工具栏),然后如图所示为视图标注尺寸。


二. 出详图(Detailing)
学习使用以下出详图工具给工程图加注解:
自动尺寸
基准特征符号
几何公差符号
注释
模型项目

(一)自动给工程图标注尺寸(Autodimensioning the Drawing)
1.打开安装目录\samples\tutorial\advdrawings\FoodProcessor.slddrw。
2.在工程图的左下角选择 Sheet2(图纸2)。
图纸包含四个工程图视图。
3.在图纸的左下角选择前视工程图视图。
4.单击自动标注尺寸
(尺寸/几何关系工具栏)。
5.在 PropertyManager 中单击
,这样您可将尺寸插入到一个以上工程图中而不关闭 PropertyManager。
6.在图形区域中,为每个视图选择为水平
和竖直
原点所显示的直线。在您为每个视图选择了线条后,单击
。
- 前视:

- 上视:A0;

c. 右视:

7.单击
。
8.拖动尺寸,这样它们按所示对齐。
前视:

上视:

右视:

(二)插入基准特征符号(Inserting a Datum Feature Symbol)
出详图工具可允许您按规格给您的工程图加注解。
1.单击基准特征
(注解工具栏)。
2.在图形区域中单击以将引线放置在工程图视图中,如图所示。

- 将指针拖动到工程图视图的左边,然后如图所示单击来放置基准特征符号。

3.单击
。

(三)插入形位公差符号(Inserting a Geometric Tolerance Symbol)
接下来,插入参考基准特征符号的形位公差符号。
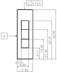
1.单击上边线,如图所示。当您预选边线时,形位公差符号自动放置。

2.单击形位公差
(注解工具栏)。
3.在对话框中:
a.在符号中选择
。
b.为公差1 键入 0.5。
c.为主要键入 A。
d.单击确定。
- 如图所示移动符号。

(四)插入注释(Inserting a Note)
您可生成一注释,然后将之保存在设计库中供在其它工程图中使用。
1.单击注释
(注解工具栏)。
2.单击工程图图纸的左下角以放置注释。
3.键入注意:。
4.按 Enter。
5.键入 除非另有指定,所有边角和圆角都具有 0.05R。
6.单击
。

(五)将注释保存到设计库(Saving a Note to the Design Library)
设计库为可重新使用的要素提供一中央位置,如注释。
1.如果任务窗格还不可见,单击
扩展任务窗格。任务窗格位于 SolidWorks 窗口的右侧。
2.在右上角中单击
将自动隐藏关闭。
3.选择 Design Library(设计库)文件夹
。
4.扩展 Design Library(设计库)
,然后单击 annotations(注解) 文件夹。
5.在图形区域中,有右键单击 annotations(注解)然后选择 添加到设计库。
6.在对话框中,在文件名称中键入一数值,然后单击保存。
注释在Design Library(设计库) annotations(注解) 文件夹中保存。如果您将指针移到设计库中的注释上,一预览出现。
- 在工程图的左下角选择 Sheet3(图纸3)标签。
工程图图纸包含数个工程图视图。
7.在设计库中,将您保存的注释拖动到工程图图纸的左下角,然后在指针变成
时用右键单击接受注释。
(六)插入模型项目(Inserting Model Items)
如果您在生成零件时插入尺寸和注解,您可将这些“模型项目”自动插入到所有工程图视图。
1.在工程图的左下角选择 Sheet3(图纸3)标签。
图纸包含六个工程图视图。
2.单击模型项目
(注解工具栏)。
3.在 PropertyManager 中,在:
a.源/目标下,选择整个模型和将项目输入到所有视图。
b.尺寸下,单击选择所有和消除重复以插入所有尺寸类型。
- 单击
。 - 拖动尺寸,这样它们按所示对齐。

1;所有标注为智造资料网zl.fbzzw.cn的内容均为本站所有,版权均属本站所有,若您需要引用、转载,必须注明来源及原文链接即可,如涉及大面积转载,请来信告知,获取《授权协议》。
2;本网站图片,文字之类版权申明,因为网站可以由注册用户自行上传图片或文字,本网站无法鉴别所上传图片或文字的知识版权,如果侵犯,请及时通知我们,本网站将在第一时间及时删除,相关侵权责任均由相应上传用户自行承担。
[complaint:内容投诉]
智造资料网打造智能制造3D图纸下载,在线视频,软件下载,在线问答综合平台 » solidworks高级工程图(图文教程)

