如何快速把UG的三维图转化成CAD的二维图呢?

第一种方法:

1、点击文件菜单中的Export→AutoCAD DXF/DWG...,弹出CAD格式转换窗口。

如何快速把UG的三维图转化成CAD的二维图呢?,二维,三维,可以,视图,第1张

2、2D转换类型中,又分model和layout两种,先介绍model。选中后点击finish,进行转换,这个过程中会有脚本运行,等脚本运行完毕,则转换完毕。

如何快速把UG的三维图转化成CAD的二维图呢?,二维,三维,可以,视图,第2张

3、选择2D转换类型中的layout,转换完毕后打开,可以发现,此类型转换是将UG中工程图和模型绑定转换。

如何快速把UG的三维图转化成CAD的二维图呢?,二维,三维,可以,视图,第3张

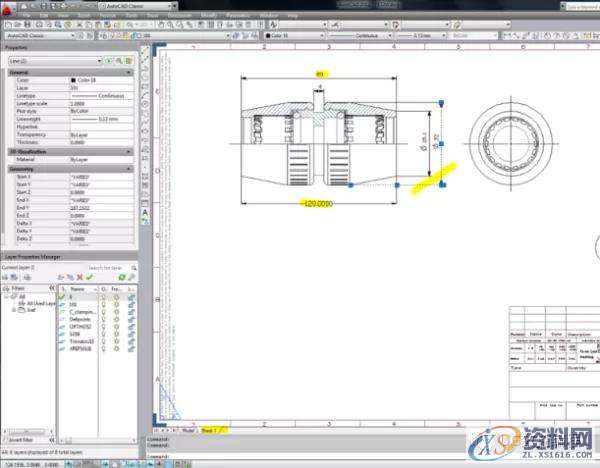
4、UG的视图图框完全转换成CAD视图图框,对视图进行标注,可以发现视图比例与UG中的保持一致,都为实际尺寸。

如何快速把UG的三维图转化成CAD的二维图呢?,二维,三维,可以,视图,第4张

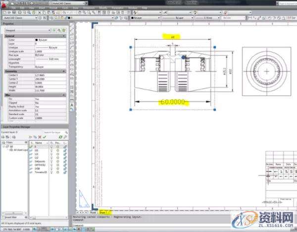
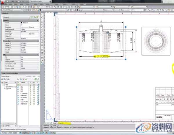
5、选择CGM转换类型,转换完毕后打开,可以发现,此类型转换将UG工程图的信息转换过来显示在layout界面,并且都以线条表示。不想从事底层工作,想摆脱现状,想学习UG编程,可以找点冠教育的老师学习CNC数控技术。

如何快速把UG的三维图转化成CAD的二维图呢?,二维,三维,可以,视图,第5张

第二种方法:

1、在UG中先绘制一个三维图。

2、绘制好三维图之后,点击UG左上角的开始,然后选中开始中的制图选项。

如何快速把UG的三维图转化成CAD的二维图呢?,二维,三维,可以,视图,第6张

如何快速把UG的三维图转化成CAD的二维图呢?,二维,三维,可以,视图,第7张

3、选中制图选项之后,点击新建图纸。

如何快速把UG的三维图转化成CAD的二维图呢?,二维,三维,可以,视图,第8张

4、新建图纸之后,选中尺寸大小然后点确定。

如何快速把UG的三维图转化成CAD的二维图呢?,二维,三维,可以,视图,第9张

5、确认尺寸之后,界面出现二维制图的边框和图表,把鼠标放到图框中间就可以显示出二维图形,点击左键就可以把二维图形放到方框里。

如何快速把UG的三维图转化成CAD的二维图呢?,二维,三维,可以,视图,第10张

6、等把3D图形的三个面都导入线框中之后,三维转二维就完成了。

如何快速把UG的三维图转化成CAD的二维图呢?,二维,三维,可以,视图,第11张
潇洒职业培训学校课程包含:CNC数控编程培训、UG汽车模具设计培训、塑胶模具设计培训,五金冲压模具设计培训,精雕、pro/E产品设计培训等,线下、线上网络学习方式,随到随学,上班学习两不误,潇洒承诺一期不会,下期免费再学。欢迎来校免费试学!

联系电话:13712128767(微信同号)QQ:1595983931
学习地址:东莞市横沥镇新城工业区兴业路121号-潇洒职业培训学校

免责声明:
1;所有标注为智造资料网zl.fbzzw.cn的内容均为本站所有,版权均属本站所有,若您需要引用、转载,必须注明来源及原文链接即可,如涉及大面积转载,请来信告知,获取《授权协议》。
2;本网站图片,文字之类版权申明,因为网站可以由注册用户自行上传图片或文字,本网站无法鉴别所上传图片或文字的知识版权,如果侵犯,请及时通知我们,本网站将在第一时间及时删除,相关侵权责任均由相应上传用户自行承担。
[complaint:内容投诉]
智造资料网打造智能制造3D图纸下载,在线视频,软件下载,在线问答综合平台 » 如何快速把UG的三维图转化成CAD的二维图呢?