快速读懂零件图的方法和步骤教程

    在零件设计制造、机器安装、机器的使用和维修及技术革新、技术交流等工作中,常常要读零件图。读零件图的目的是为了弄清零件图所表达零件的结构形状、尺寸和技术要求,以便指导生产和解决有关的技术问题,这就要求工程技术人员必须具有熟练阅读零件图的能力。

一、读零件图的基本要求

  1.了解零件的名称、用途和材料。

  2.分析零件各组成部分的几何形状、结构特点及作用。

  3.分析零件各部分的定形尺寸和各部分之间的定位尺寸。

  4.熟悉零件的各项技术要求。

  5.初步确定出零件的制造方法。(在制图课中可不作此要求)。

二、读零件图的方法和步骤

  1、概括了解

  从标题栏内了解零件的名称、材料、比例等,并浏览视图。可初步得知零件的用途和形体概貌。

  2、详细分析

  (1)分析表达方案分析零件图的视图布局,找出主视图、其它基本视图和辅助视图所在的位置。根据剖视、断面的剖切方法、位置,分析剖视、断面的表达目的和作用。

  (2)分析形体、想出零件的结构形状这一步是看零件图的重要环节。先从主视图出发,联系其他视图、利用投影关系进行分析。一般先采用形体分析法逐个弄清零件各部分的结构形状。对某些难于看懂的结构,可运用线面分析法进行投影分析,彻底弄清它们的结构形状和相互位置关系,最后想象出整个零件的结构形状。在进行这一步分析时,往往还须结合零件结构的功能来进行,使分析更加容易。

  (3)分析尺寸先找出零件长、宽、高三个方向的尺寸基准,然后从基准出发,搞清楚哪些是主要尺寸。再用形体分析法找出各部分的定形尺寸和定位尺寸。在分析中要注意检查是否有多余的尺寸和遗漏的尺寸,并检查尺寸是否符合设计和工艺要求。

  (4)分析技术要求分析零件的尺寸公差、形位公差、表面粗糙度和其他技术要求,弄清楚零件的哪些尺寸要求高,哪些尺寸要求低,哪些表面要求高,哪些表面要求低,哪些表面不加工,以便进一步考虑相应的加工方法。

  3、归纳总结

  综合前面的分析,把图形、尺寸和技术要求等全面系统地联系起来思索,并参阅相关资料,得出零件的整体结构、尺寸大小、技术要求及零件的作用等完整的概念。

  必须指出,在看零件图的过程中,上述步骤不能把它们机械地分开,往往是参差进行的。另外,对于较复杂的零件图,往往要参考有关技术资料,如装配图,相关零件的零件图及说明书等,才能完全看懂。对于有些表达不够理想的零件图,需要反复仔细地分析,才能看懂。

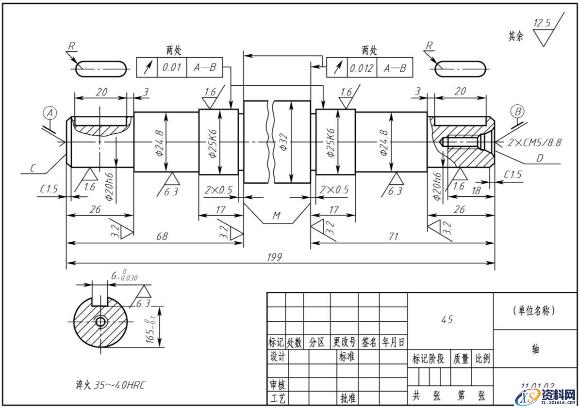
快速读懂零件图的方法和步骤教程,读零件图的方法和步骤,零件,步骤,教程,第1张

免责声明:
1;所有标注为智造资料网zl.fbzzw.cn的内容均为本站所有,版权均属本站所有,若您需要引用、转载,必须注明来源及原文链接即可,如涉及大面积转载,请来信告知,获取《授权协议》。
2;本网站图片,文字之类版权申明,因为网站可以由注册用户自行上传图片或文字,本网站无法鉴别所上传图片或文字的知识版权,如果侵犯,请及时通知我们,本网站将在第一时间及时删除,相关侵权责任均由相应上传用户自行承担。
[complaint:内容投诉]
智造资料网打造智能制造3D图纸下载,在线视频,软件下载,在线问答综合平台 » 快速读懂零件图的方法和步骤教程