说到AutoCAD大家都非常熟悉了,在绘图时经常用到,变压器中图形绘制我们会用到CAD,一般我们用CAD画二维图形,却比较少画三维图形,但有时候三维图形跟能够形象的表述问题,偶尔在工作中也会用到的,所以掌握一些三维画图的技能也是有需要的!
我以一个实例来说说三维图形绘制的一点思路吧!(如下是一个BOBBIN平面尺寸图)

首先我们要有一个思路,要怎样画这个BOBBIN的三维图呢?我们可以定一个步骤,先画什么后画什么?
我们将BOBBIN分几个部分拆开来画:下挡板、上挡板、针脚、绕线柱
一、下挡板:(根据尺寸图可以知道下挡板长15.2mm,高5.7mm,支点5.7-3.5=2.2mm,先绘制一个U型图,后组成面域/reg,然后根据总长13.7和幅宽8.7得出下挡板的厚度是2.5mm,因此拉伸/ext 2.5mm)


然后旋转换个角度

接下来画针脚:(根据尺寸图知道针脚直径0.6,4个针,针距3.0mm,并随意拉伸一个针长,这里长度约5mm)


然后将针脚移动到下挡板中:(根据尺寸图得知,针脚中心距离挡板边1.35mm,并将针脚植入BOBBIN约1mm)


接着做出槽位:(画一个边约2mm和0.5mm的三角形,并拉伸1mm,后移动到挡板上。利用差集工具做出槽位)


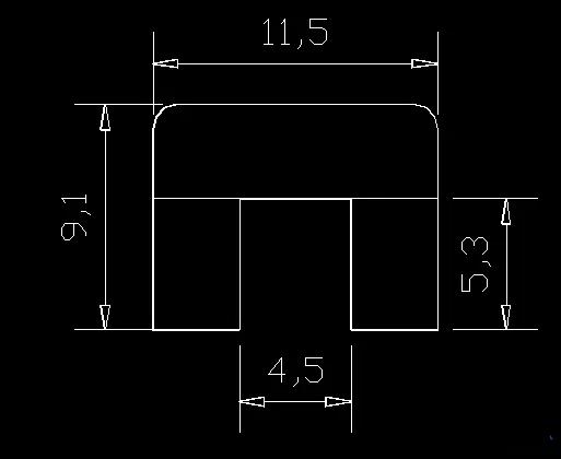
二、上挡板;根据尺寸上挡板长11.5mm*(14.8-5.7),磁芯孔5.3*4.5mm,还要做一个11.5*(9.1-5.3)的长方形,并分别拉伸0.55mm和2mm,(其中上面的2mm厚度尺寸图中没有标明,就随意拉伸一个厚度,并对上部进行圆角处理)


然后将上下挡板组合在一起

三、绕线柱:根据尺寸图得知绕线尺寸外6.5*5.3mm,内5.3*4.5mm,长度9.8mm,因此绘制两个长方形并拉伸9.8mm,然后差集将中间做孔。


接着组合起来

然后换到俯视图上,利用镜像工具出来另外一半


接着可以装上磁芯,磁芯画法就不细说了


着色后看看效果图


完成!!!(用到了面域、拉伸、旋转、UCS、修剪、圆角等工具)
因为细节较多,具体的画法描述不是很详细,算是给大家提供一个思路吧,当然每个人的画图方式都是不同的,里面会有一些比较费时的方式,可能不是最快捷的方式,还请大家给出好的建议!
1;所有标注为智造资料网zl.fbzzw.cn的内容均为本站所有,版权均属本站所有,若您需要引用、转载,必须注明来源及原文链接即可,如涉及大面积转载,请来信告知,获取《授权协议》。
2;本网站图片,文字之类版权申明,因为网站可以由注册用户自行上传图片或文字,本网站无法鉴别所上传图片或文字的知识版权,如果侵犯,请及时通知我们,本网站将在第一时间及时删除,相关侵权责任均由相应上传用户自行承担。
[complaint:内容投诉]
智造资料网打造智能制造3D图纸下载,在线视频,软件下载,在线问答综合平台 » AutoCAD三维制图思路(图文教程)

