一.产品介绍
数码相机是常见的小家电产品,很多小伙伴家里应该都有,数码相机前盖其产品图见图1,产品最大外形尺寸为118.87 mm x 63.79 mm x 35.42 mm,塑件平均胶位厚度1.61 mm,塑件材料为ABS+10GF,缩水率为1.0035,塑件质量为38.92 克。塑件技术要求为不得存在披峰、注塑不满、流纹、气孔、翘曲变形、银纹、冷料、喷射纹等各种缺陷。
图 1 数码相机前盖产品图
二.产品分析:
数码相机作为高级日用电子产品,对其外观有很高的要求。前盖壳子的另一个要求是强度要求,组装后产品跌落地面不能破碎,因此选择ABS 加纤增加强度。塑件整体造型为矩形壳子,三面需要大滑块抽芯。塑件侧面有一段螺纹孔,需要全自动脱螺纹。螺纹孔的里侧形成倒扣,需要设计斜顶成型。模具设计的难点在于塑件脱螺纹机构的设计。
图2数码相机产品2D模具图
三.模具设计:
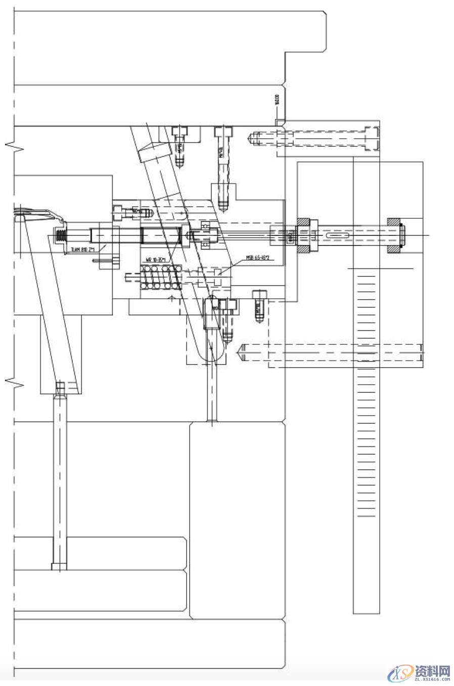
模具由于脱螺纹机构和三面滑块占用很大空间,型腔排位为1 出1,模胚为富得巴标准模胚MDC FC 33 35 80100 120 H,属于简化细水口模胚。浇口套底面与模板相接触处设计可换镶件,以便磨损后更换。拉料杆头部的储料穴设计为圆形,不易崩裂,特别适合带有玻纤的塑料。脱螺纹模具的齿轮齿条传动,有增速传动和降速传动两种。
利用开模力驱动齿条,再驱动齿轮脱螺纹时,如果螺纹的圈数较多,而齿条的长度不能超过模具厚度,在有限的开模行程内,要使螺纹芯全部脱出,就必须使用增速传动。在利用电机和液压马达脱螺纹时,电机和液压马达的转速较高,为了不使塑件螺纹被损坏,一般都要通过减速机构降低螺纹芯的转速。不论增速或者减速机构,其传动都不能超过2 级传动。
图3
图4
在本套模具中,侧面的螺纹与滑块抽芯机构干涉,是模具设计的难点。由于空间位置的关系,设计脱螺纹机构受到限制。为此,设计了齿条带动齿轮的脱螺纹机构,齿轮和齿条的模数为1.5,两个小齿轮均为16 齿,大齿轮为64 齿;增速速比为1:4;
螺纹芯穿过大滑块,并在其上套装弹簧,螺纹芯的外端安装小齿轮,大齿轮与另一个小齿轮同轴装在另一传动轴上,螺纹芯的小齿轮与大齿轮啮合,齿条与传动轴上的小齿轮啮合。模具设计时,需要注意齿条安放的方向,齿条安装方向决定于螺纹轴的转向,与螺纹的左右旋有关。
图5
开模后,分型面打开时,在齿条的作用下,小齿轮带动传动轴旋转,进而带动大齿轮旋转,大齿轮与螺纹芯轴上的小齿轮啮合,带动螺纹芯转动,在弹簧作用下,螺纹芯边转边退实现螺纹抽芯。与螺纹孔相对应的壳体里面倒扣采用斜顶脱出倒扣,斜顶结构为两段式斜顶,斜顶与底部顶针采用T 型槽连接。

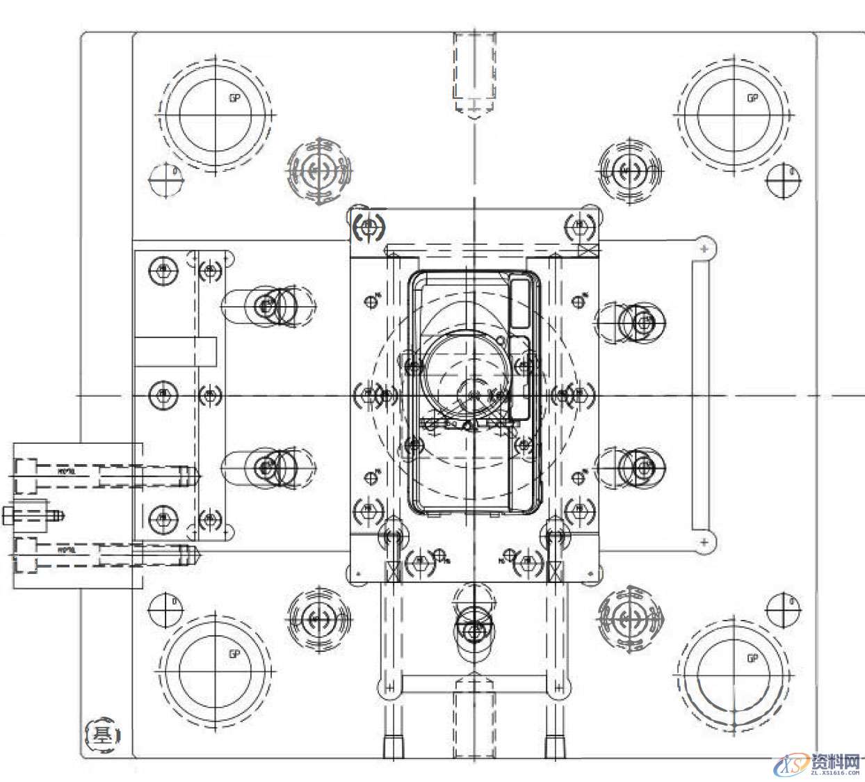
图6数码相机前盖模具图
塑件三个角部采用司筒顶出,其余部位采用扁顶针和顶针顶出。顶针板上设计了中托司,兼做撑头,为顶出机构提供精密导向。塑件三个侧面大滑块均采用斜导柱抽芯。左右两个滑块较宽,采用两支斜导柱驱动。滑块的底面和斜面均设计了耐磨板。

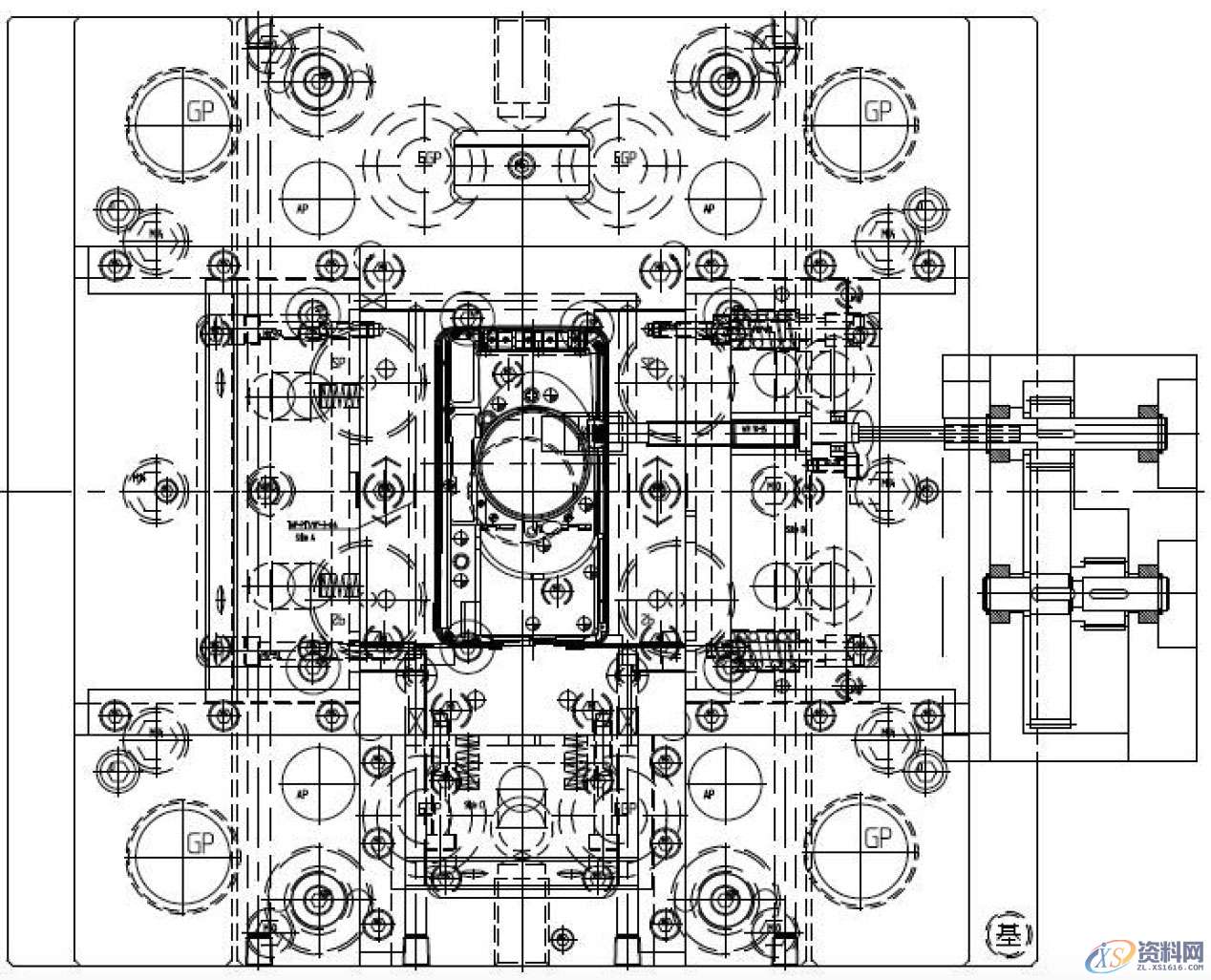
图7数码相机前盖模具图

图8数码相机前盖模具图
东莞潇洒职业培训学校目前开设课程有:学历提升、积分入户、数控编程培训、塑胶模具设计培训,压铸模具设计培训、冲压模具设计培训,精雕、ZBrush圆雕培训、Solidworks产品设计培训、pro/E产品设计培训、AutoformR7工艺分析培训,非标自动化设计、PLC编程、CNC电脑锣操机、平面设计等培训,潇洒职业培训学校线下、线上等网络学习方式,随到随学,上班学习两不误,欢迎免费试学!
联系电话:13018636633(微信同号) QQ:1740467385
学习地址:东莞市横沥镇
1;所有标注为智造资料网zl.fbzzw.cn的内容均为本站所有,版权均属本站所有,若您需要引用、转载,必须注明来源及原文链接即可,如涉及大面积转载,请来信告知,获取《授权协议》。
2;本网站图片,文字之类版权申明,因为网站可以由注册用户自行上传图片或文字,本网站无法鉴别所上传图片或文字的知识版权,如果侵犯,请及时通知我们,本网站将在第一时间及时删除,相关侵权责任均由相应上传用户自行承担。
[complaint:内容投诉]
智造资料网打造智能制造3D图纸下载,在线视频,软件下载,在线问答综合平台 » 精雕模具产品 :数码相机前盖注塑模设计要点分享

